La Casa Pronta Per Te Nel Cuore Di Cerrelli-Rif.061025
€105.000
- Tipologia: Residenziale
- Affitto / Vendita: In vendita
- Città: altavilla silentina
- Cap: 84045
- Via: Via Del Dopolavoro
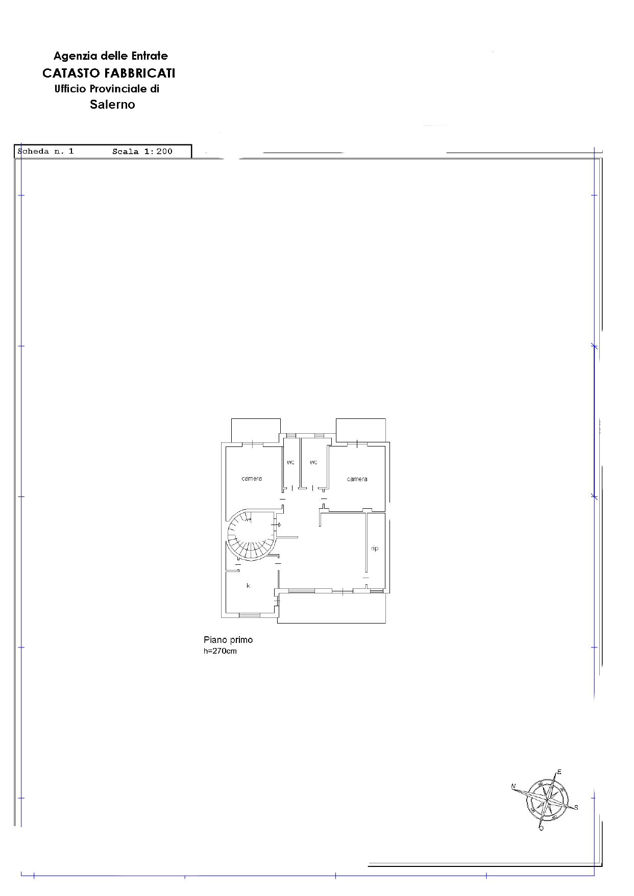
- Camere da letto: 2
- Bagni: 2
- Superficie: 110 m²
- Anno di costruzione: 1988
Accessori
- Balcone
- Buono Stato
- posto auto
Dettagli
La Casa Pronta Per Te Nel Cuore Di Cerrelli
Paghi meno di un affitto e diventi proprietario! Cerrelli è uno di quei posti dove ancora ci si saluta per strada, dove tutto è a portata di mano: il fornaio, la scuola, la farmacia, il bar sotto casa.
È qui, in Via del Dopolavoro, che ti aspetta una casa luminosa e pronta da vivere.
Niente lavori, niente stress: solo la sensazione di aprire la porta e sentirti subito a casa. Una zona giorno spaziosa dove cucinare e vivere, due camere accoglienti, due bagni e balconate che lasciano entrare la luce del mattino.
E quando torni, non devi più girare per parcheggiare: hai il tuo posto auto riservato, sotto casa.
È la soluzione ideale per giovani coppie, famiglie o chi è stanco di pagare affitti senza costruire nulla per sé.
Non serve immaginare: questa casa è già pronta, curata, nel centro di tutto.
Ti resta solo da fare una cosa: venire a vederla.
Dati tecnici e distanze
- Superficie abitativa: 110mq
- Locali: cucina, salone, 3 camere, 2 bagni
- Stato: ristrutturato
- Anno di costruzione: 1988
- Posizione: Via Del Dopolavoro. frazione Cerrelli, comune di Altavilla Silentina (SA)
Distanze dai principali punti di interesse:
- Negozi, farmacia: entro 200 m- 1 minuti a piedi
- Capaccio Scalo (stazione FS e servizi maggiori): 14 km – 20 minuti in auto
- Parco Archeologico di Paestum: 17 km – 25 minuti in auto
- Mare di Paestum (Licinella/Laura): 20 km – 30 minuti in auto
- Agropoli: 23 km – 35 minuti in auto
- Caserma di Persano: 8,4 km- 11 minuti di auto
Virtual tour
Video
- ID: 13683
- Pubblicato: 16 Ottobre 2025
- Ultimo aggiornamento: 10 Novembre 2025
- Visualizzazioni: 125