0828 1993448
Via Italia 1961, n°156/158 Capaccio Paestum (SA)
sggruppo@gmail.com

Una Casa Che Cresce Con La Tua Famiglia-Cod.Rif:270226

€265.000

Accessori

  • Accesso Per Disabili
  • Aria Condizionata
  • Balcone
  • Box Auto
  • cantina

Dettagli

Apri la porta la mattina, senti il profumo del caffè dei bar sotto casa, scendi senza prendere l’auto e hai tutto lì: negozi, servizi, la stazione a pochi passi.

La giornata parte semplice, senza corse, senza complicazioni.

Appena entri in casa, la sensazione è quella dello spazio.
Gli ambienti sono ampi, pieni, veri. Il salone accoglie la luce che entra da più lati, si muove durante il giorno e cambia l’atmosfera.

Qui la famiglia si ritrova, si parla, si vive.

La cucina è separata, concreta, fatta per i gesti quotidiani: preparare, condividere, stare insieme.

Le tre camere da letto non sono solo stanze, sono possibilità.
Una per il riposo, una per i figli, una per chi lavora da casa o per chi arriva e resta qualche giorno in più. I doppi servizi rendono tutto più semplice, soprattutto nei momenti in cui la casa è piena di vita.

La tripla esposizione regala aria e luce in ogni ambiente.
Apri le finestre, lasci entrare il sole, senti la casa respirare.

E poi ci sono quei dettagli che fanno la differenza ogni giorno.
Il box auto: torni, parcheggi, sali in casa senza stress.
La cantina: lo spazio che libera la casa da tutto ciò che non serve avere sempre davanti.

È un appartamento da ristrutturare, sì.
Ma proprio per questo è una tela aperta.
Oggi gli ambienti sono separati, ben definiti, ma è proprio questa struttura che lo rende facile da modellare: puoi aprire gli spazi, creare una zona living ampia, far dialogare cucina e soggiorno, dare continuità e respiro agli ambienti.

Non devi adattarti a qualcosa di già fatto: puoi creare quello che davvero ti serve, come lo vuoi tu.

Qui non compri solo una casa.
Scegli di vivere al centro, con spazio, luce e comodità.
E quando tutto è a portata di mano, la vita cambia davvero.

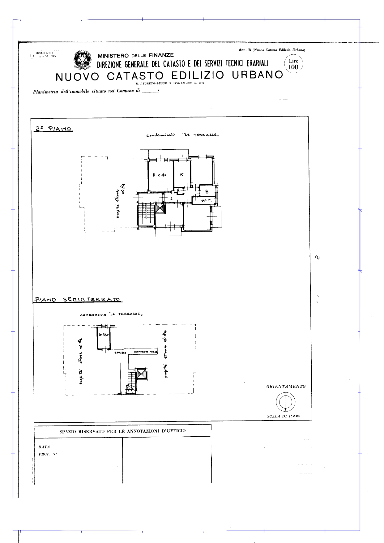
DATI TECNICI

Superficie:

  • Abitazione: 124 mq
  • Box auto: 22 mq
  • Cantina: 10 mq
  • Superficie commerciale totale: circa 137,5 mq

Piano: Secondo
Piani edificio: 4
Ascensore: Presente
Spese condominiali: € 60/mese

Composizione interna:

  • 6 locali complessivi
  • 3 camere da letto
  • Cucina abitabile
  • Ampio soggiorno
  • 2 bagni
  • Balconi

 Pertinenze:

  • Box auto singolo
  • Cantina
  • 1 posto auto

Caratteristiche e impianti:

  • Stato: Da ristrutturare
  • Anno di costruzione: 1983
  • Lati liberi: 3
  • Affaccio esterno
  • Infissi in vetro/legno

Riscaldamento:

  • Autonomo a radiatori
  • Alimentazione a metano

Climatizzazione:

  • Autonoma caldo/freddo

Classe energetica: G

 POSIZIONE E DISTANZE PRINCIPALI

Immobile situato in zona centrale e servita, a pochi passi dalla stazione ferroviaria, ideale per chi necessita di collegamenti rapidi.

 Servizi essenziali

  • Stazione Capaccio Scalo: 100–200 metri (raggiungibile a piedi)
  •  Supermercati, negozi, bar: 200–400 metri
  •  Scuole: 300–600 metri
  •  Farmacia: 300 metri

 Collegamenti principali

  • SS18: circa 1 km
  • Agropoli: circa 10 km (15 minuti)
  • Mare / Paestum: circa 4 km (7–10 minuti)
  •  Area Archeologica di Paestum: 4 km
  • Autostrada A2 Battipaglia: circa 25 km (25 minuti)

Virtual tour

Video

Piani

  • ID: 14934
  • Pubblicato: 2 Aprile 2026
  • Ultimo aggiornamento: 2 Aprile 2026
  • Visualizzazioni: 120